


產品中心
Product Center -
鈉離子交換器
2022-02-15 15:41:41
產品詳情
簡介:
鈉離子交換器也稱軟化器,用于降低去除水中的鈣離子、鎂離子使水得到軟化的設備。
工作原理:
軟水器采用NaCL再生,樹脂中鈉離子與水中的鈣、鎂等離子進行交換反應,使水得到軟化。
應用:
主要用于鍋爐、化工、輕工、紡織、醫藥、生物、電子等所需進行硬水軟化的處理。
設備結構型式:

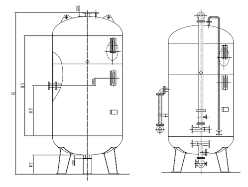
鈉離子交換器
1:根據再生方式可分為:順流再生、逆流再生、無頂壓逆流再生
2:根據出水結構可分為:水帽結構、石英砂墊層結構
技術參數:
工作壓力:≤0.59MPa
工作溫度:5℃~50℃
運行流速:20m/h~25m/h
流量:15T/H~154T/H
規格:Φ1000~Φ2800
進水品質:懸浮物≤5mg/L,
出水品質:總硬度<15μmol/L。
設備照片:

鈉離子交換器(軟化器)尺寸規格表:


遼寧一諾環境產業集團有限公司
地址:遼寧省北票市經濟技術開發區一諾環保產業園
電話:400-082-9898
手機:18842199977
給我們留言
掃一掃,關注我們
Copyright ? 2020 All Rights Reserved. 遼寧一諾環境產業集團有限公司版權所有 遼ICP備19012322號-3